A New Community Centre for Ahascragh

For years, Ahascragh has been without a dedicated space for gatherings, events, and activities.Our mission is to rebuild that space—creating a modern, inclusive, and accessible community centre that serves people of all ages.

Our Vision

Our vision is to create a welcoming, vibrant space at the heart of Ahascragh where people of all ages can come together to learn, connect, and thrive. The new community centre will build on the activities we currently host—such as Bridge Club, Foróige, and card games—by offering a wider range of recreational, educational, and social programmes. Future plans include classes in computer literacy, knitting, yoga, and mindfulness, as well as activities for young families, active age groups, and community organisations. This charity-run centre will ensure that these much-needed opportunities and services are available locally for everyone in the community.

History

In 2017, St. Cuan’s Parish Hall in Ahascragh was condemned and deemed unfit for use as a parish hall by Dolan and Associates Ltd, Civil Engineering and Architectural Consultants on 30th September 2017. Since then, the community of Ahascragh has experienced a significant void without the use of this hall.
There was a public meeting held in St. Cuan’s National School (the old national school) in Ahascragh on 21st February, 2022, to address this issue. At that meeting, there was a committee elected. Officers of the committee were nominated and elected by the public, proposed and seconded, and all nominees agreed to accept the positions as proposed. The committee officers are committed to provide and run a community centre on the site of the condemned hall. The committee were elected at that meeting to address the urgent need for a community centre. We are currently operating from the old national school in Ahascragh on a temporary basis.

Sign up to our newsletter

Get the latest updates, offers, and insights delivered to your inbox.

Ahascragh Community Centre Update

For years, Ahascragh has been without a dedicated space for gatherings, events, and activities.Our mission is to rebuild that space—creating a modert

23rd August 2024

We were awarded a €50,000 grant for professional fees towards the construction of our new community centre.

23rd October 2024

Bishop Doran, on behalf of the Diocese of Elphin, granted us, the Ahascragh Area Enhancement Company CLG, a 15yr lease of the old parish hall, until we obtain registration as a Charity, when he will transfer ownership of the property to the Ahascragh Area Enhancement Company C.L.G.

November 2024

Door to door collection of the parish took place which resulted in a total of €46,935 being raised.

25th June 2025

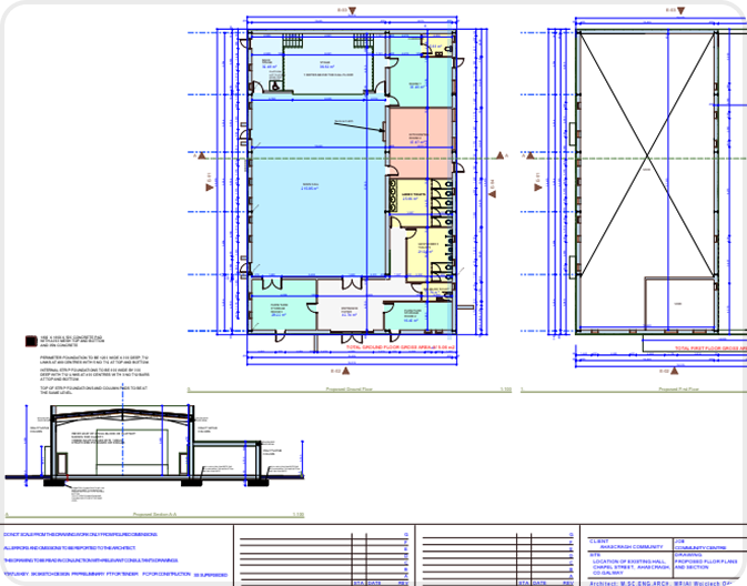
We received planning permission for the demolition of the old parish hall and the construction of a one storey community centre on the existing site.

7th August 2025

We were officially granted charity status by the Charities Regulator of Ireland.

12th August 2025

Our solicitors have commenced the process with the solicitor acting on behalf of the Diocese of Elphin, of transferring the ownership of the old parish hall to us.

Leaflet Update

Stay up-to-date with the latest developments for Ahascragh’s new community centre. Our leaflet contains all the essential information about upcoming events, community programmes, and fundraising initiatives designed to make our vision a reality. Learn how local residents are coming together to create a vibrant, welcoming space for all ages.

Support our ongoing fundraising events.

Join us in shaping a stronger, more connected community—your support today will make a lasting difference for generations to come.

Get In Touch

Join us in shaping a stronger, more connected community

Scroll to Top